2011 Chrysler 200 Wiring Diagram Unlimited Wiring Diagram
2010 Jeep Compass Fuse Panel Diagram Wiring Diagram Tri
8c6f3 Kawasaki Klt 200 Wiring Diagram Wiring Resources
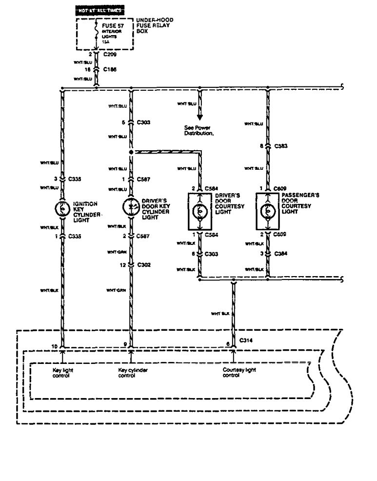
Acura Legend 1994 1995 Wiring Diagram Interior Light
